Ortsgemeinde Schwegenheim

Bebauungsplan „Oberer Waldacker, 4. Änderung“ 


Öffentliche Bekanntmachung

Gemäß § 3 Abs. 2 des Baugesetzbuches (BauGB) wird hiermit bekannt gemacht, dass der Bebauungsplanentwurf „Oberer Waldacker, 4. Änderung“ der Ortsgemeinde
Schwegenheim, bestehend aus der Planzeichnung, den textlichen Festsetzungen und der Begründung sowie dem Fachbeitrag Naturschutz und der Niederschlagswasserbewirtschaftung, zur Beteiligung veröffentlicht wird. Die Beteiligung der Öffentlichkeit nach § 3 Abs. 2 BauGB erfolgt durch Veröffentlichung des Bebauungsplanentwurfes im Internet auf der Homepage der Verbandsgemeinde Lingenfeld und ergänzend durch öffentliche Auslegung der Planunterlagen in der Zeit vom

23.02.2026 bis einschließlich 24.03.2026.

Während des Zeitraums der Veröffentlichung können die Bebauungsplanunterlagen sowie die Bebauungsplanunterlagen hier auf unserer Homepage der Verbandsgemeinde Lingenfeld eingesehen werden. 

Als zusätzliches Informationsangebot können die Unterlagen auch im Rathaus der Verbandsgemeindeverwaltung Lingenfeld, Fachbereich 2 – Natürliche Lebensgrundlagen und Bauen, Hauptstraße 60 in 67360 Lingenfeld, während der allgemeinen Öffnungszeiten eingesehen werden.

Öffnungszeiten Rathaus:

Klicken, um weitere Öffnungs- oder Schließzeiten auszublenden

Montag

Von 08:00 bis 12:00 Uhr Von 14:00 bis 16:00 Uhr

Dienstag

Von 08:00 bis 12:00 Uhr Von 14:00 bis 16:00 Uhr

Mittwoch

Von 08:00 bis 12:30 Uhr Von 14:00 bis 18:00 Uhr

Donnerstag

Von 08:00 bis 12:00 Uhr

Freitag

Von 08:00 bis 13:00 Uhr

Samstag

geschlossen

Sonntag

geschlossen




  • Allgemeine Ziele und Zweck der Planung  

    Die Ortsgemeinde Schwegenheim ist Eigentümerin des Grundstückes mit der Flurstücksnummer 7868/21, welches nördlich und östlich an die Wohnbebauung des Gebietes „Oberer Waldacker“ angrenzt. Teile hiervon wurden u.a. an die angrenzenden Anlieger für eine Gartennutzung verpachtet. Bei der Verpachtung wurden bauliche Anlagen und deren Nutzungen ausgeschlossen. Insgesamt handelt es sich hier aktuell um eine Pachtfläche von ca. 4.200 m².

    Die verpachteten Grundstücksteile verfügen hierbei über unterschiedliche Tiefen von ca. 5 – 10 m. Das vorgenannte Grundstück befindet sich innerhalb des Geltungsbereiches des Bebauungsplanes „Oberer Waldacker“ der Ortsgemeinde Schwegenheim sowie dessen Änderungen. Für die vorgenannten Flächen ist insbesondere der 2. Änderungsplan zum Bebauungsplan „Oberer Waldacker“ einschlägig geltend, welcher u.a. für die nördlichen und östlichen Flächen geänderte Festsetzungen trifft. Ein Ziel des 2. Änderungsplanes war eine rechtliche Regelung zu schaffen, welche eine Gartennutzung in diesem rückwärtigen Bereich ermöglicht. 

    Im Rahmen der 2. Änderung wurde die nördlich an die Wohnbebauung angrenzende Fläche als Fläche zum Anpflanzen von Bäumen und Sträuchern sowie der östlich an die Bebauung angrenzende Bereich als Grünfläche mit Bindung für Bepflanzungen und für den Erhalt von Bäumen und Sträuchern festgesetzt. Hierbei handelt es sich ausschließlich um die Möglichkeit für Grünpflanzungen und den Erhalt von Grünpflanzen. Eine Festsetzung über die Zulassung von baulichen Anlagen wurde nicht getroffen. Unter baulichen Anlagen sind u.a. Einfriedungen, Versiegelungen, Gartenhäuser, Schwimmbäder, Carports, Garagen, etc. zu verstehen. Entgegen den Festsetzungen des Bebauungsplanes „Oberer Waldacker 2. Änderung“ und den Regelungen innerhalb der Pachtverträge wurden unterschiedliche bauliche Anlagen errichtet. 

    Dies hat zur Folge, dass die grünordnerischen Festsetzungen zur reinen Gartennutzung nicht mehr eingehalten sind. Die Ortsgemeinde beabsichtigt daher, die betroffenen nördlichen und östlichen Grundstücksteile an die angrenzenden Eigentümer der jeweiligen Wohnbaugrundstücke zu veräußern und diese Flächen im zukünftigen Geltungsbereich des Bebauungsplans „Oberer Waldacker, 4. Änderung“ als private Grünfläche / Hausgärten auszuweisen. Damit soll erreicht werden, dass die baulichen Anlagen zum Teil legalisiert werden und u.a. die bestehenden Einfriedungen erhalten bleiben können. Aus diesem Grund hat der Ortsgemeinderat Schwegenheim in seiner Sitzung am 19.09.2023 die 1. Änderung des Aufstellungsbeschlusses für den Bebauungsplan „Oberer Waldacker, 4. Änderung“ gefasst.

    Die frühzeitige Beteiligung der Öffentlichkeit gem. § 3 Abs. 1 BauGB und die frühzeitige Beteiligung der Behörden und sonstigen Träger öffentlicher Belange gem. § 4 Abs. 1
    BauGB wurde im Zeitraum vom 02.12.2024 bis einschließlich 10.01.2025 durchgeführt.

  • Lage und Größe des Plangebiets

    Das Plangebiet befindet sich im Anschluss der östlichen und nördlichen Wohnbebauung des Bebauungsplangebietes „Oberer Waldacker“ in der Gemarkung Schwegenheim.

  • Abgrenzung des Planbereichs

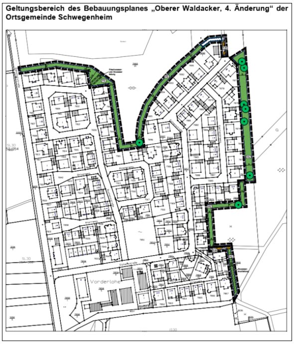
    Der Geltungsbereich des Bebauungsplans ist in 3 Teilgeltungsbereiche aufgeteilt. Der Geltungsbereich im nördlichen Bereich der Buchenstraße und Eichenstraße wird auf eine Tiefe von 5,0 m beschränkt. Ebenfalls wurde die Tiefe des süd-östlichen Geltungsbereichs auf 5,0 m begrenzt. Die Tiefe des nord-östlichen Geltungsbereichs beläuft sich auch 9,0 m. Das Plangebiet umfasst vollständig die Flurstücksnummern 7868/19 und 7868/21 sowie eine Teilfläche aus der Flurstücksnummer 7868/20 der Gemarkung Schwegenheim.

  • c) Der nördliche Geltungsbereich wird wie folgt begrenzt:  

    Im Norden

    Durch eine gedachte Linie innerhalb der Flurstücksnummer 7868/21 in 5,0 Meter Entfernung zu den angrenzenden nördlichen Wohnbaugrundstücken.

    Im Osten

    Durch eine gedachte Linie innerhalb der Flurstücksnummer 7868/21 in 3,0 Meter Entfernung zum Flurstück 7890/1 mit der Begrenzung durch die nördliche fiktive 5,0 m-Linie

    Im Süden

    • Durch die nord-westliche Grundstücksgrenze der Flurstücksnummern 7890/1, 7891, 7890, 7892, 7893, 7894 und 7885,
    • durch die westliche Grundstückgrenze der Flurstücksnummer 7896,
    • durch die nördliche Grundstückgrenze der Flurstücksnummer 7903, 7902 und 7901,
    • durch die östliche Grundstücksgrenze der Flurstücksnummer 7847, 7846, 7845, 7844, 7843,
    • durch die nördliche Grundstückgrenze der Flurstücksnummer 7843,
    • durch die östliche Grundstücksgrenze der Flurstücksnummer 7899 (Straße „Buchenstraße“) und 7804,
    • durch die nördliche Grundstückgrenze der Flurstücksnummer 7804, 7803, 7802 und 7801.

    Im Westen

    Durch die östliche Grundstücksgrenze der Flurstücksnummer 3201/6 (Straße „Bahnhofstraße“).

    Der Geltungsbereich ist in der Anlage zeichnerisch dargestellt.

  • b) Der nord-östliche Geltungsbereich wird wie folgt begrenzt:  

    Im Norden

    Querung der Flurstücksnummer 7868/21 in Ost-West-Richtung auf Höhe der südlichen Grundstücksgrenze der Flurstücksnummer 7857/3 (Straße „Eichenstraße“) mit der
    gedachten Verlängerung dieser Grundstücksgrenze.

    Im Osten

    Durch die westliche Grundstücksgrenze der Flurstücksnummer 3511/06, 2774/32 und 3511/11.

    Im Süden

    Querung der Flurstücknummer 7868/21 in Ost-West-Richtung auf Höhe der südlichen Grundstücksgrenze der Flurstücksnummer 7871/1.

    Im Westen

    Durch die östliche Grundstückgrenze der Flurstücksnummer 7871/1, 7872, 7873,7874, 7875, 7876 und 7877.

    Der Geltungsbereich ist in der Anlage zeichnerisch dargestellt.

  • c) Der süd-östliche Geltungsbereich wird wie folgt begrenzt:

    Im Norden

    Durch die südliche Grundstücksgrenze der Flurstücksnummer 7871/1.

    Im Osten

    Durch eine gedachte Linie innerhalb der Flurstücksnummer 7868/21 in 5,0 Meter Entfernung zu den angrenzenden süd-östlichen Wohnbaugrundstücken.

    Im Süden

    Durch die nord-westliche Grundstückgrenze der Flurstücksnummer 3511/11.

    Im Westen

    • Durch die östliche Grundstückgrenze der Flurstücksnummer 7867, 7868/17 und 7868/23,
    • durch die nördliche Grundstückgrenze der Flurstücksnummer 7868/23,
    • Querung der Flurstücksnummer 7868/20 in nord-süd Richtung auf Höhe der östlichen Grundstücksgrenze der Flurstücksnummer 7868/8,
    • durch die östliche Grundstückgrenze der Flurstücksnummer 7868/8, 7868/7 und 7868/6,
    • durch die südliche Grundstücksgrenze der Flurstücksnummer 7869/2, 7870/1, 7870/2, 7870/5 und 7870/4,
    • durch die östliche Grundstücksgrenze der Flurstücksnummer 7868/4.

    Der Geltungsbereich ist in der Anlage zeichnerisch dargestellt.


Umweltbezogene Informationen bzw. Stellungnahmen

Folgende umweltbezogene Informationen liegen aktuell vor und werden veröffentlicht:

  • Fachbeitrag Naturschutz vom Ingenieurbüro Bettina Krell GmbH (Stand Februar 2026). Für diesen Bebauungsplan wurde auf eine gesonderte Erstellung des Fachbeitrags Naturschutz verzichtet und eine integrierte Bearbeitungsweise mit dem Umweltbericht gewählt. Die Überschneidungen sind weitreichend und Wiederholungen sollen vermieden werden.


Umweltbezogene Informationen bzw. Stellungnahmen, welche während der ersten Beteiligung der Behörden und sonstigen Trägern öffentlicher Belange sowie Nachbargemeinden gemäß § 4 Abs. 1 des Baugesetzbuches (BauGB) eingegangen sind:


Der Umweltbericht sowie der Fachbeitrag Naturschutz enthält Informationen zu folgenden Themen:

  • Schutzgut – Boden/ Fläche/ Wasser, 
  • Schutzgut - Pflanzen und Tiere/ Biologische Vielfalt, 
  • Schutzgut - Luft und Klima, Schutzgut – Landschaftsbild/ Ortsbild/ Erholung, 
  • alternative Planungsmöglichkeiten und Kompensationsmaßnahmen.


Das Entwässerungskonzept enthält Informationen zu folgenden Themen:

Niederschlagswasserberechnungen und Umgang bzw. Bewirtschaftung von anfallenden und schadfreien Niederschlagswasser auf den Grundstücken im Geltungsbereich des Bebauungsplans

Stellungnahmen mit umweltbezogenen Informationen von Behörden und sonstigen Trägern öffentlicher Belange sowie Nachbargemeinden, welche
während der Beteiligung gemäß § 4 Abs. 1 des Baugesetzbuches (BauGB) eingegangen sind, liegen zu folgenden Themenblöcken vor:

Während der frühzeitigen Beteiligung der Öffentlichkeit gemäß § 3 Abs. 1 des Baugesetzbuches (BauGB) sind keine umweltbezogenen Informationen bzw. Stellungnahmen eingegangen. Somit entfällt eine Auflistung nach Themenblöcken.


Hinweise: Während der Veröffentlichungsfrist (siehe oben  ) können Stellungnahmen bei der Verbandsgemeindeverwaltung Lingenfeld eingereicht oder auf elektronischem Weg per Fax oder E-Mail übermittelt werden. Gemäß §3 Abs. 2 Satz 4 des Baugesetzbuches wird darauf hingewiesen, dass nicht fristgerecht abgegebene Stellungnahmen bei der Beschlussfassung über den Bauleitplan unberücksichtigt bleiben können.

Kontaktdaten:

Verbandsgemeindeverwaltung Lingenfeld

Hauptstraße 60

Fachbereich 2- Bauen

67360 Lingenfeld

+49 6344 5094-245

Schwegenheim, den 11.02.2026

Weber

Ortsbürgermeister